Wyatt's Hotel & Theatre

Tombstone, Arizona

Asking Price: USD $775,000
Guest Rooms: 5    7
Owners Quarter: 1    1

Property Overview

Located in Tombstone, Arizona, famously known as “The Town Too Tough to Die”, and is a living snapshot of the Old West, where dusty streets, historic saloons, and preserved 1880s architecture bring frontier history vividly to life.

Nestled in the high desert of Cochise County, Tombstone blends its legendary past, home to the O.K. Corral and figures like Wyatt Earp and Doc Holliday, with a welcoming, small-town charm.

Visitors and locals alike enjoy gunfight reenactments, unique shops, and a strong sense of heritage, all set against sun-soaked skies and rugged desert landscapes that make Tombstone feel both timeless and unmistakably Arizona.

Renovated in 2014, this building is bursting with charm and located just steps away from the Historic Downtown area and the O.K. Corral.

Currently being operated as a hotel with 3 guests suites. Plus, potential for additional 2-3 larger apartment style units available, including the Owners apartment (upstairs), onsite property manager apartment (downstairs), and friends/family suite (downstairs).

The Theatre/Event space is being leased by a local group for wild west reenactments on Thursday - Sunday. This portion of the building would be ideal for wild west weddings and events.

Steps away from Tombstones historic district & main street, Allen Street & the OK Corral. The building is currently operating as a hotel and theatre with wild west reenactments. Situated along a main road toward parking, the building gets a lot of car and foot traffic as visitors walk toward the main street.

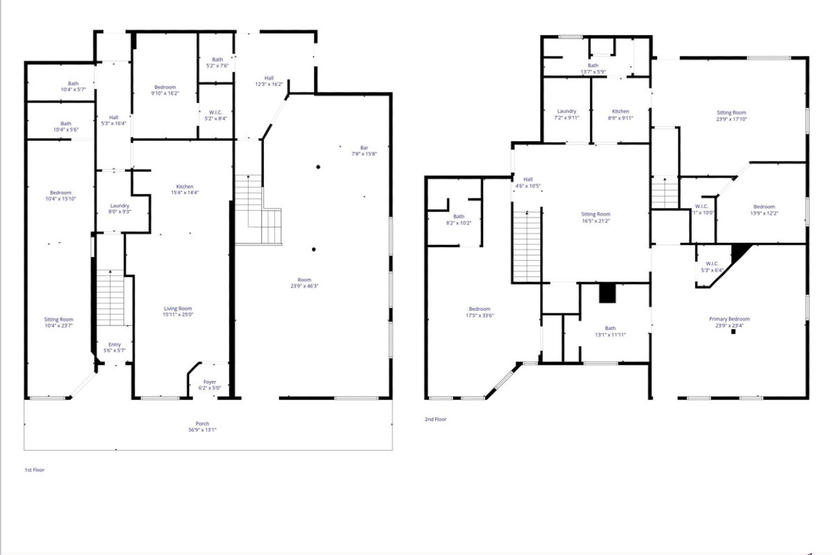
Hote configuration:
Upstairs :
1 private apartment with bedroom, bathroom, living room, dining room,kitchen & private balcony.
3 guest suites w/ private bathroom, one with balcony views of the town.
1- Grand King Suite with private bathroom and balcony overlooking town.
1 - Double Queen Suite with private bathroom and views of town.
1 - Queen Suite with private bathroom and views of the courthouse.

Plus, this level includes a large open room used as a private gathering space for the hotel guests. Area is set-up with a coffee station, snacks, mini-fridge.
Additionally, large laundry room and seperate store room.

Downstairs:
1 studio apartment with full bath (this space was previoulsy used as the reception area for guests).
1 apartment with kitchen, bedroom, living room, bathroom, laundry room & extra storage.

"Theatre Space" is currently being used by a local group for wild west reenactments. The space is ideal for hosting events & gatherings, or retail shop. This portion of the building has a private double door enterance from the ground level.

All furnishings and decor are included in the sale. If buyer is interested in maintaining the building as a hotel owner will covey the booking platform and all current bookings.

Actual and proforma figures available to serious qualified buyers.

About the Owner's Quarters

Upstairs with private balcony, bedroom with queen bed & walk-in closet, living room, dining room, kitchen, and bathroom.

Additional downstairs apartment could also be an owners suite.

Features:
  • Is Historic Historic
  • Has a Barn Romantic
  • Has a Wedding Venue Wedding Venue
3D Tour
Business Description:

Owner has operated as a hobby project not as a full bed/breakfast.
This building has the opportunity to generate solid profit if all units were being rented and operated as bed/breakfast.
Actual and proforma figures will be provided to serious, qualified buyers.

Terms of Sale:

Cash or financed.
No seller carryback - FIRPTA may apply.

Valuation & Mortgage Calculator:
30 Years Fixed
n/a % Interest
  • Loan Amount
  • Principle and Interest
  • Cash Flow
  • DSCR $0
  • Cap Rate $0
  • ROI $0
Listed By
Tammy Medigovich (Listing Agent)
  480-223-2429
Good Oak Real Estate

MLS:

6993061

Sq Ft:

6,505

Owner's Quarters Sq Ft:

806

Acres:

3599

Year Built:

1902

Last Renovated:

2014

Years in Business:

12

MLS:

6993061
Share via Social
Financial Overview

Asking Price:

USD $775,000

Other Properties You May Like

15
Thousand Island Hart House inn for sale

Thousand Island Hart House

Wellesley Island, New York

Asking Price: USD $1,295,000
Guest Rooms: 10    11
Owners Quarter: 2    1
5
Castle in the Country inn for sale

Castle in the Country

Allegan, Michigan

Asking Price: USD $2,750,000
Guest Rooms: 10    10
Owners Quarter: 2    2
10
La Ville Inn inn for sale

La Ville Inn

Davis, Oklahoma

Asking Price: USD $975,000
Guest Rooms: 6    6
Owners Quarter: 1    2